Onder bod:Aquamarijnstraat 12, 9743 RA Groningen - Foto
Onder bod
+36

Aquamarijnstraat 12 9743 RA Groningen € 375.000,- k.k.

  • Woonhuis
  • 5 kamers
  • 4 slaapkamers
  • 1 badkamer
  • Bouwjaar 1970
  • 120 m² perceeloppervlakte
  • 124 m² gebruiksoppervlakte
  • A Energielabel A

Beschrijving

Deze ruime eengezinswoning heeft het allemaal: ligging in een kindvriendelijke buurt, modern van binnen en buiten en een tuin op het zuiden. Dankzij energielabel A woon je hier bovendien comfortabel en energiezuinig. Daarnaast is een groot deel van de woning in de afgelopen jaren gerenoveerd. Het geheel is voorzien van nieuwe kunststof kozijnen met HR++ beglazing, nieuwe keuken en toilet en nieuw stucwerk.

In de wijk zijn veel verschillende voorzieningen aanwezig. Zo is er een winkelcentrum in de wijk met meerdere supermarkten en vele soorten andere winkels. Op nog geen kilometer afstand is ook het winkelcentrum van de wijk Reitdiephaven te vinden. Dit biedt tevens een uitgebreid aanbod aan winkels en andere voorzieningen. De bereikbaarheid is goed. Bushaltes zijn op loopafstand en met de auto is de westelijke ringweg erg dichtbij.

Indeling:
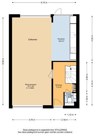
Via de voordeur kom je binnen in de hal, die toegang geeft tot verschillende ruimtes. Als eerste is er de woonkamer met open keuken van circa 42 m². Doordat de voormalig afgesloten keuken is open gebroken, is er een prettige, open ruimte gecreëerd. De woonkamer en de keuken zijn voorzien van vloerverwarming en van nieuw, strak stucwerk. Dankzij de grote ramen aan de voor- en achterzijde is dit een heerlijk lichte en aangename leefruimte. De keuken is verzorgd en voorzien van diverse inbouwapparatuur, waaronder een koelkast, vriezer, vaatwasser, oven, inductiekookplaat en afzuigkap. In de hal bevindt zich daarnaast meterkast en een toilet met fonteintje.
Op de eerste verdieping vind je drie ruime slaapkamers van ongeveer 16, 13 en 9 m². De badkamer is modern afgewerkt en uitgerust met een inloopdouche, toilet, wastafelmeubel en een designradiator.
De zolderverdieping biedt een ruime overloop met bergruimte, wasmachineaansluiting en CV-ketel (2021). Ook is hier de vierde slaapkamer van circa 12 m² te vinden.
De achtertuin ligt op het zuiden en is de hele dag heerlijk zonnig. Het heeft een vrijstaande berging. Ook is er een handige achterom aanwezig.

Bijzonderheden:
- Energielabel A
- Geheel (op 2 dakramen na) voorzien van kunststof kozijnen met HR++ beglazing (2024)
- Voorzien van 7 zonnepanelen
- Vloerverwarming (2024)
- Keuken, badkamer en toilet vernieuwd (2022)
- Winkelcentrum Reitdiep om de hoek en winkelcentrum Vinkhuizen in de wijk

Kaart

Kenmerken

Overdracht

Referentienummer
0133
Vraagprijs
€ 375.000,- k.k.
Verwarming
€ 175,-
Water
€ 18,-
Status
Onder bod
Aanvaarding
In overleg
Aangeboden sinds
Woensdag 18 maart 2026
Laatste wijziging
Woensdag 1 april 2026

Bouw

Type object
Woonhuis, eengezinswoning, tussenwoning
Soort bouw
Bestaande bouw
Bouwperiode
1970
Dakbedekking
Dakpannen
Type dak
Dwarskap
Isolatievormen
Grotendeels dubbel glas
HR-glas
Spouwmuren

Oppervlaktes en inhoud

Perceeloppervlakte
120 m²
Woonoppervlakte
124,26 m²
Woonkameroppervlakte
31,1 m²
Keukenoppervlakte
9,9 m²
Inhoud
431 m³
Oppervlakte externe bergruimte
10,07 m²

Indeling

Aantal bouwlagen
3
Aantal kamers
5 (waarvan 4 slaapkamers)
Aantal badkamers
1 (en 1 apart toilet)

Tuin

Type
Achtertuin
Hoofdtuin
Ja
Oriëntering
Zuiden
Heeft een achterom
Ja
Staat
Normaal

Energieverbruik

Energielabel
A

CV ketel

CV ketel
AWB Thermomaster C-XV
Warmtebron
Gas
Bouwjaar
2021
Combiketel
Ja
Eigendom
Eigendom

Uitrusting

Warm water
CV-ketel
Verwarmingssysteem
Centrale verwarming
Vloerverwarming (gedeeltelijk)
Ventilatie methode
Natuurlijke ventilatie
Keukenvoorzieningen
Inbouwapparatuur
Badkamervoorzieningen
Douche
Inloopdouche
Toilet
Wastafel
Wastafelmeubel
Glasvezelaansluiting aanwezig
Ja
Tuin aanwezig
Ja
Heeft schuur/berging
Ja
Heeft een dakraam
Ja
Heeft zonnepanelen
Ja

Kadastrale gegevens

Kadastrale aanduiding
Groningen L 4721
Perceeloppervlakte
120 m²
Omvang
Geheel perceel
Eigendomsituatie
Eigen grond

Brochure(s) en overige bijlagen

Aquamarijnstraat 12, 9743 RA GRONINGEN (1) Download