Verkocht:Henk Plenterlaan 43, 9731 KE Groningen - Foto
Verkocht
+31

Henk Plenterlaan 43 9731 KE Groningen

  • Woonhuis
  • 5 kamers
  • 4 slaapkamers
  • 1 badkamers
  • Bouwjaar 2002
  • 102 m² perceeloppervlakte
  • 124 m² gebruiksoppervlakte
  • B Energielabel B

Beschrijving

Op een fijne woonlocatie in de jonge en gewilde kindvriendelijke wijk van Starkenborgh, nabij het stadscentrum en de Ring gelegen keurige hoekwoning. Dit goed geïsoleerde woonhuis uit 2001, verkeert in zeer goede staat van onderhoud en is gesitueerd op een perceel van 102 m². Op de tweede verdieping van deze gezinswoning is een grote dakkapel geplaatst, waardoor er een zeer grote slaapkamer is gerealiseerd. In totaal zijn er nu 4 volwaardige slaapkamers. Direct voor het huis kan geparkeerd worden op twee eigen parkeerplaatsen. De onderhoudsvriendelijk aangelegde tuin, met achterom, staat een praktische houten berging (voorzien van een nieuw dak).

De ligging in de wijk Van Starkenborgh is geliefd én dichtbij het centrum van de stad Groningen. Tegelijkertijd bevind je je in een ruim opgezette groene woonomgeving aan het van Starkenborghkanaal. Daarnaast is de buurt erg kindvriendelijk met name door de autoluwe straten.

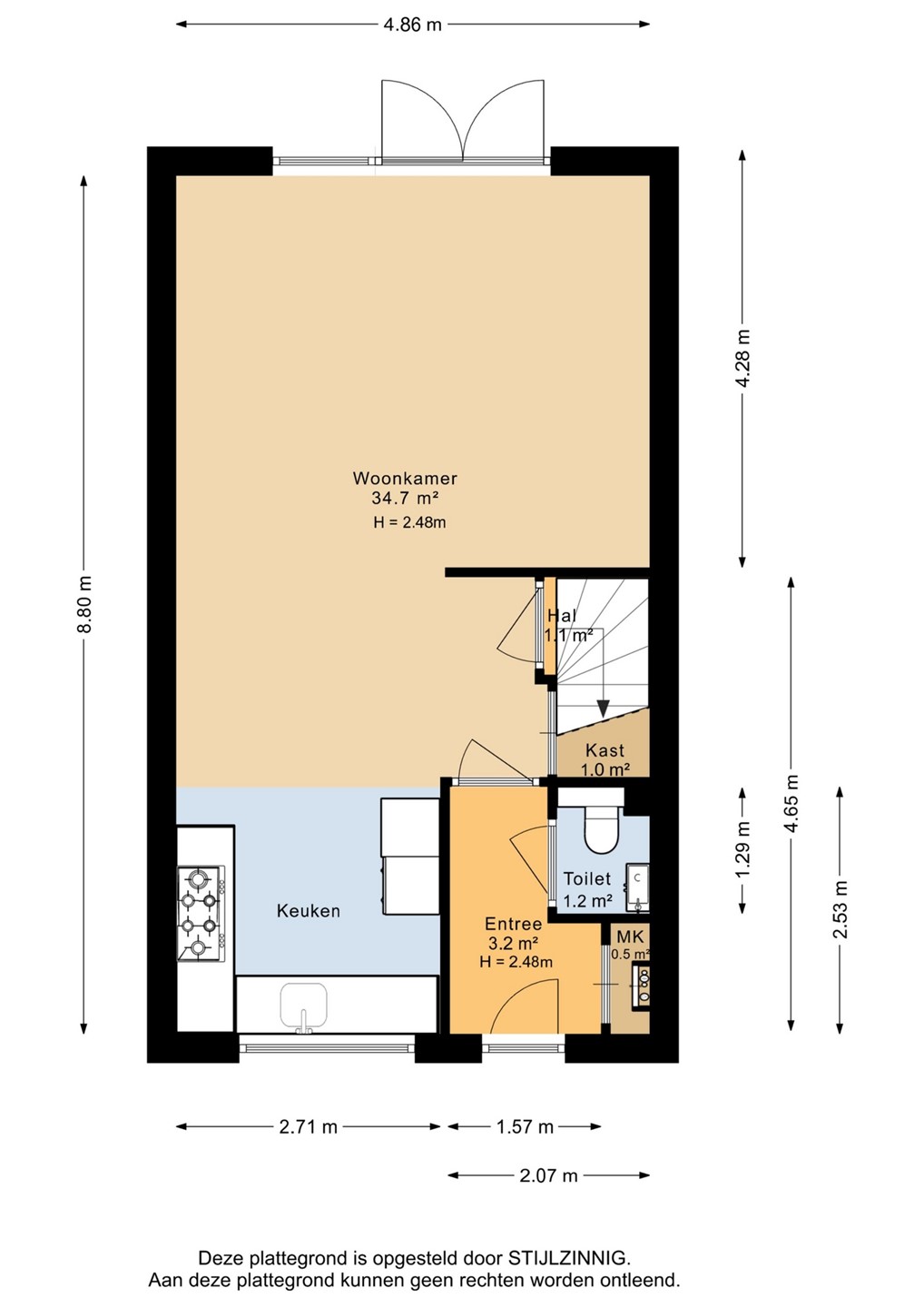
INDELING Begane grond: Entree/hal met trapopgang, toilet met fonteintje, woonkamer met visgraat pvc vloer en dubbele openslaande deuren naar de tuin, moderne open keuken met inbouwapparatuur.

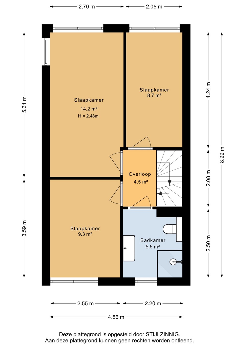
Eerste verdieping: Via de overloop is er toegang tot de drie slaapkamers op deze verdieping. De moderne badkamer van ca. 7 m² is voorzien van douche, wastafel, designradiator en tweede toilet.

Tweede verdieping: Royale open slaapverdieping met hoog plafond en dakkapel. Op deze verdieping bevindt zich een afgescheiden ruimte voorzien van de wasmachineaansluiting en ruimte voor de droger, CV-opstelplaats en bergruimte.

BIJZONDERHEDEN:
- Woonoppervlak: ca. 124 m²
- 4 slaapkamers
- Grote dakkapel geplaatst op de tweede verdieping
- Energielabel B
- Houten berging aan de achterzijde
- Eigen parkeerplaatsen aan de voorzijde
- Rustige ligging in jonge woonwijk Alle voorzieningen en de binnenstad op korte afstand

Kaart

Kenmerken

Overdracht

Referentienummer
0107
Vraagprijs
€ 489.000,- k.k.
Status
Verkocht
Aanvaarding
In overleg
Aangeboden sinds
Vrijdag 5 december 2025
Laatste wijziging
Maandag 5 januari 2026

Bouw

Type object
Woonhuis, eengezinswoning, hoekwoning
Soort bouw
Bestaande bouw
Bouwperiode
2002
Dakbedekking
Bitumen
Dakpannen
Type dak
Samengesteld
Isolatievormen
Dakisolatie
Dubbel glas
HR-glas
Muurisolatie
Vloerisolatie

Oppervlaktes en inhoud

Perceeloppervlakte
102 m²
Woonoppervlakte
124 m²
Woonkameroppervlakte
34,7 m²
Inhoud
440 m³
Oppervlakte externe bergruimte
8,86 m²

Indeling

Aantal bouwlagen
3
Aantal kamers
5 (waarvan 4 slaapkamers)
Aantal badkamers
1 (en 1 apart toilet)

Locatie

Ligging
In woonwijk

Tuin

Type
Achtertuin
Hoofdtuin
Ja
Oriëntering
Zuidoost
Heeft een achterom
Ja
Staat
Prachtig aangelegd

Energieverbruik

Energielabel
B

CV ketel

CV ketel
Intergas
Warmtebron
Gas
Bouwjaar
2014
Combiketel
Ja
Eigendom
Eigendom

Uitrusting

Aantal parkeerplaatsen
2
Warm water
CV-ketel
Verwarmingssysteem
Centrale verwarming
Badkamervoorzieningen
Douche
Toilet
Wastafel
Wastafelmeubel
Tuin aanwezig
Ja

Kadastrale gegevens

Kadastrale aanduiding
Groningen A 11372
Perceeloppervlakte
102 m²
Omvang
Geheel perceel
Eigendomsituatie
Eigen grond

Brochure(s) en overige bijlagen

Henk Plenterlaan 43, 9731 KE GRONINGEN (1) Download
Verhuis Café

Verhuis Café

Wil jij verhuizen? Kom naar ons Verhuis Café op 17 februari

Meer informatie