Verkocht:Kerklaan 41B, 9717 HB Groningen - Foto
Verkocht
+21

Kerklaan 41B 9717 HB Groningen

  • Appartement
  • 3 kamers
  • 2 slaapkamers
  • 1 badkamers
  • Bouwjaar 2012
  • 52 m² gebruiksoppervlakte
  • A+++ Energielabel A+++

Beschrijving

Dit moderne en energiezuinige appartement is van alle gemakken voorzien dat je van een moderne appartement uit 2012 mag verwachten. Veel dichterbij dan dit kan je niet bij het Noorderplantsoen wonen. Een heerlijke ligging dus! Ook ten opzichte van leuke kroegjes, het centrum van Groningen en de supermarkt.

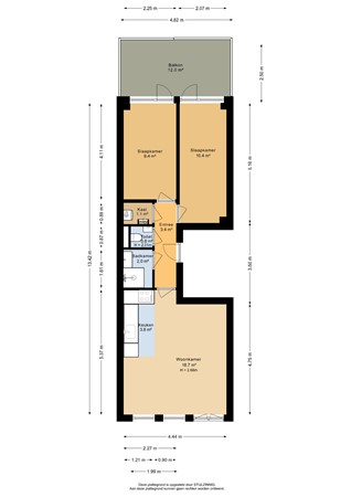
Indeling: entree vanaf de straat met trapopgang naar de eerste verdieping met eigen entree. Vanaf deze hal is er toegang tot de woonkamer met open keuken aan de voorzijde van het complex. De keuken is voorzien van verschillende inbouwapparatuur te weten een koelkast, vriezer, oven, inductiekookplaat en vaatwasser. De woonkamer is heerlijk licht en beschikt over een Frans balkon. Terug in de hal is de badkamer met douchehoek, wastafelmeubel en designradiator te vinden, eveneens het separate toilet. In de technische ruimte met CV-installatie en warmtepomp is ook de wasmachine-aansluiting aanwezig. Aan de achterzijde van de woning bevinden zich twee slaapkamers van 10,4 en 9,4 m². Vanuit beide slaapkamers is het balkon van 12 m² toegankelijk.

-Zie ook de advertentie van Kerklaan 41c!
-Energielabel A+++
-Noorderplantsoen op steenworpafstand
-Bouwjaar 2012
-Actieve VvE
-Straat wordt binnenkort veranderd in rustige 'fietsstraat'

Kaart

Kenmerken

Overdracht

Referentienummer
0069
Vraagprijs
€ 280.000,- k.k.
Servicekosten
€ 113,44
Status
Verkocht
Aanvaarding
In overleg
Aangeboden sinds
Maandag 1 september 2025
Laatste wijziging
Donderdag 16 oktober 2025

Bouw

Type object
Appartement, portiekflat
Woonlaag
2e woonlaag
Soort bouw
Bestaande bouw
Bouwperiode
2012
Type dak
Platdak
Isolatievormen
Dubbel glas
HR-glas

Oppervlaktes en inhoud

Woonoppervlakte
52 m²
Woonkameroppervlakte
18,7 m²
Keukenoppervlakte
3,8 m²
Inhoud
175 m³
Oppervlakte gebouwgebonden buitenruimte
12 m²
Balkonoppervlakte
12 m²

Indeling

Aantal bouwlagen
1
Aantal kamers
3 (waarvan 2 slaapkamers)
Aantal badkamers
1 (en 1 apart toilet)

Energieverbruik

Energielabel
A+++

CV ketel

Warmtebron
Gas
Eigendom
Eigendom

Uitrusting

Warm water
CV-ketel
Verwarmingssysteem
Centrale verwarming
Warmtepomp
Badkamervoorzieningen
Douche
Wastafelmeubel
Heeft een balkon
Ja
Heeft een frans balkon
Ja

Vereniging van Eigenaren

Ingeschreven bij de KvK
Ja
Jaarlijkse vergadering
Ja
Periodieke bijdrage
Ja
Opstal verzekering
Ja

Kadastrale gegevens

Kadastrale aanduiding
Groningen D 6400
Omvang
Appartementsrecht of complex
Eigendomsituatie
Eigen grond

Media

Plattegronden

Verhuis Café

Verhuis Café

Wil jij verhuizen? Kom naar ons Verhuis Café op 17 februari

Meer informatie